乐居财经北京 徐迪 3月23日中午,丰台新盘建发金茂观宸开盘,官宣成交207套,销售额总计22.43亿元。
项目首批预证房源457套,207套相当于完成45%的去化。
建发金茂观宸所在丰台槐新地块成交于2024年11月29日,由建发房产旗下福州裕诚房地产24.35亿元摘得,楼面价约4万元/㎡,与中国金茂联手打造为建发在京的首个“风雅宋韵”系列产品。
建设用地面积约3.04万平方米,总建筑面积约9.24万平方米,其中地上建筑面积6.08万平方米,地下建筑面积3.16万平方米,最高建筑58米,容积率2.0。
规划11栋6-18F洋房+小高层,总户数为479户。 共7个户型,面积段111-165㎡。
3月17日取得预售许可证,准售房源为2#-11#10栋楼共457套住宅,总建面约5.82万㎡,拟售均价在7.77万-8.64万元/㎡区间。

楼盘表随机查看得房率,在75.1%-80.4%区间:
2#楼共7层2个单元,22套房源,其中:
建面113.69㎡四室两厅(B户型),套内面积91.36㎡,得房率80.4%;
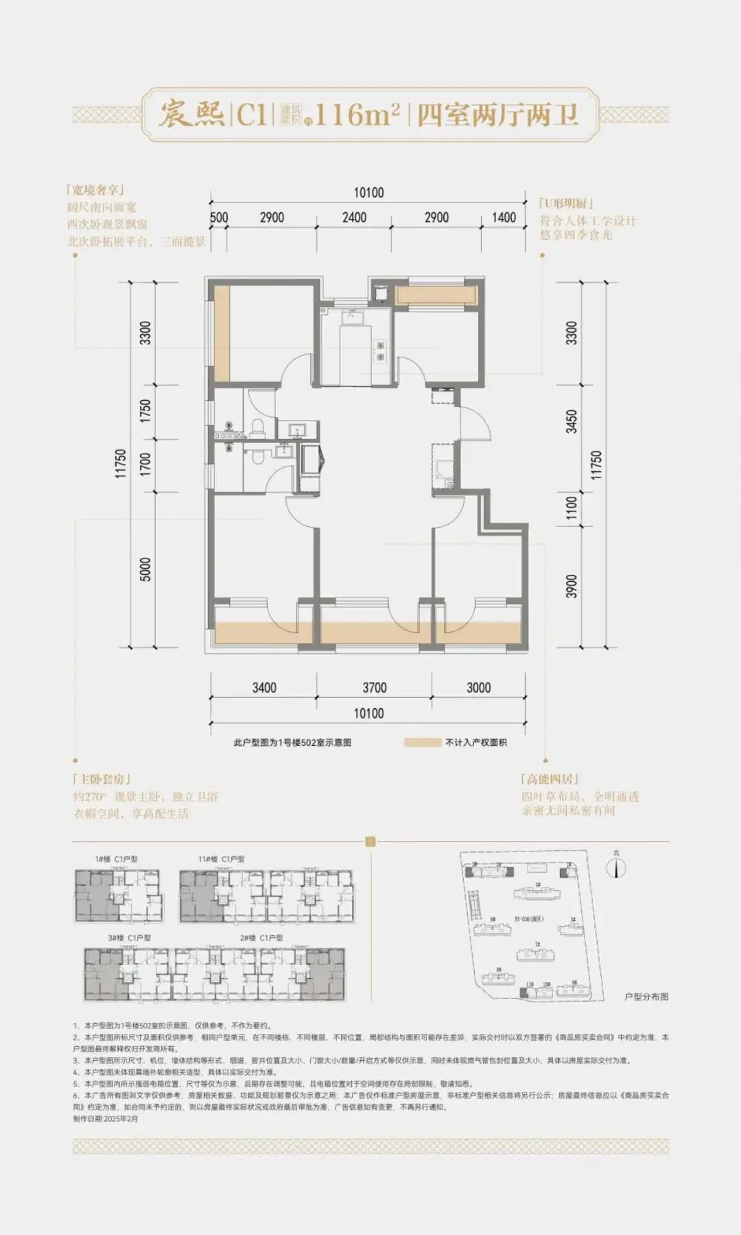
建面116.6㎡四室两厅(C户型),套内面积93.7㎡,得房率80.4%。
4#楼共17层2个单元,67套房源,其中:
建面149.93㎡四室两厅(F户型),套内面积118.09㎡,得房率78.8%;
建面165.67㎡四室两厅(G户型),套内面积130.49㎡,得房率78.8%。
6#楼共18层2个单元,72套房源,其中:
建面132.26㎡四室两厅(D户型),套内面积105.13㎡,得房率79.5%;
建面136.89㎡四室两厅(E户型),套内面积108.81㎡,得房率79.5%。
8#楼共15层2个单元,60套房源,
建面111.62㎡三室两厅(A户型),套内面积83.83㎡,得房率75.1%。
项目产权得房率不高,但在加上赠送面积后,整体空间扩容出10%左右,实际使用率在83%-91%区间。
南向通面宽内嵌阳台赠送一半面积,北向/西向大尺度设备平台全赠送,均可封闭做室内空间,另有侧边飘窗面积全赠送。
1、起步111户型三室双卫,南向三开间为通面宽阳台,主卧转角阳台,北向小卧搭配2.5㎡设备平台,空间不输于南向次卧;
2、四居建面低至113平米,并且借助阳台和设备平台的扩展面积,打造出四叶草户型,并且每个卧室都能达到舒适面积,没有那种凑房间数的“小笼屋”。
南向主卧(含卫)20.23㎡,南向次卧和两间北向卧室也都在10㎡以上;餐客面积约31㎡;厨房面积略小,仅有7㎡左右,胜在方正,且可与餐厅打通做空间延展。
3、116户型主卧则升级为转角阳台,西北次卧带侧边飘窗;
4、1赠送比例最高的136户型则是给唯一没有阳台的次卧配置了西南向转角飘窗,赠送面积超15平米;
5、顶配165户型,四个开间朝南,每个房间都有阳台。

当然设计也存在一些问题:
1、全部户型,都有一个卧室房门正对着公卫的洗手盆,洗手盆上一般都会有镜子,半夜上厕所开门就看见人影晃动,想想还是有点惊悚。把镜子遮起来,日常使用又不便利。
2、包括111、116和132在内的多个户型,入户门正对着卫生间。这种设计私密性不足,风水上也是大忌,“开门见厕,秽气迎头”。
建发金茂观宸主打新中式,正所谓“风雅宋韵”,刻板印象里,喜欢这种风格的房子,多少会对风水有点讲究,上面这两个“浑不吝”的设计,改动起来有点难度,估计会劝退一部分购房者。
3、111、136户型,客厅太小,摆放三人位沙发略显局促。
4、大户型有暗卫。一整套户型图看下来,反而是小面积户型有巧思,更具性价比;大户型反而平平,就连端户都没有侧边飘窗。

外观设计上,从小区大门、配套楼到所有住宅楼,全部采用了屋脊高耸的双层大飘檐。
在平面图上显示有两栋楼设置了首层架空,小区内设有风雨连廊和多处水系。
从西侧景观大门步入后,连接下沉会所和两栋架空层,及至整个中央广场水系周边的通道。会所周边环绕着廊亭廊道,中央广场也依水建起一座小亭,周边有带顶盖的廊道。
小区里有多处水系景观,从大门外两边的水池,到中央广场水景,包括7#楼南侧,也有一大片水蓝色区域。

附:全套户型图







相关标签:
交易 房情报



